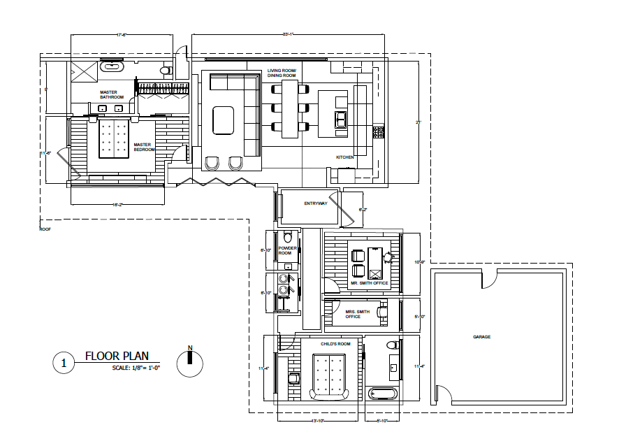
Original Floor Plan
FINAL FLOOR PLAN
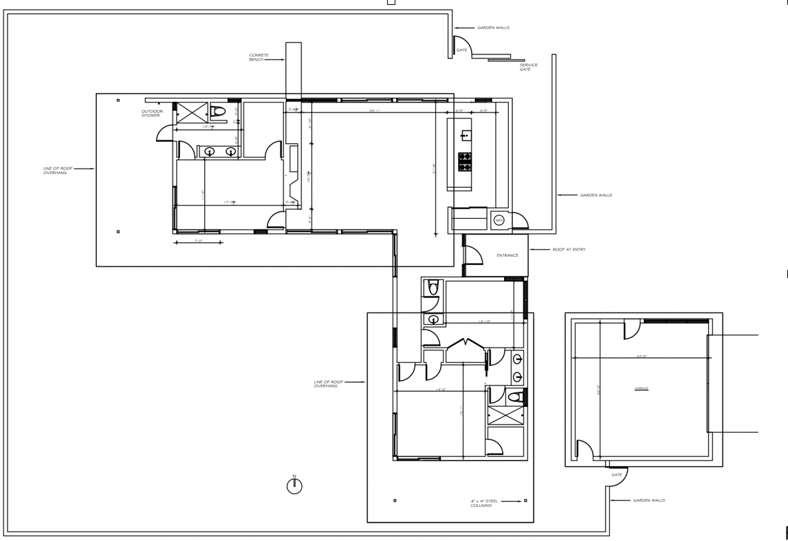
RENOVATION PLAN
INSPIRATION
HOME FINISHES
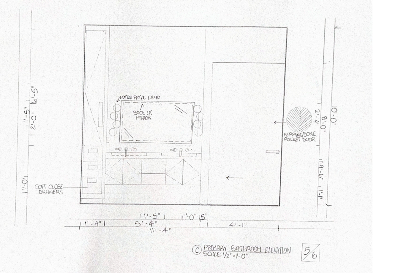
MASTER BEDROOM CONCEPT
The Smith House is built around the concept of Weave & Water, using materials like rattan and hardwood paneling while maintaining a balanced, airy feel through cool coastal blues and an open-concept flow throughout the home.